Fregadero Pleon 6, InFino®, con control excéntrico (con botón de control desde distancia)
- color: negro
- material: SILGRANIT® PuraDur®
- el producto es adecuado para montaje superior
- fregadero de un seno sin escurridor
- anchura mínima del armario 600 mm
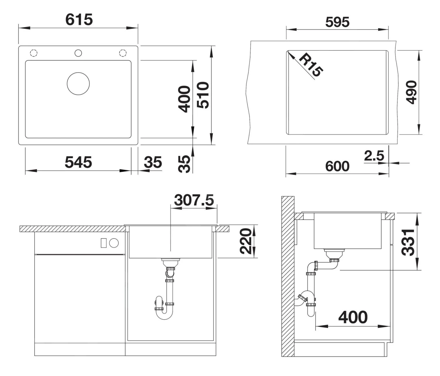
- dimensión total: 615 x 510 mm
- dimensiones de fregadero: 545 x 400 mm
- profundidad de fregadero: 220 mm
- 1 orificio para grifo
- con desagüe
- diámetro de desagüe 3 1/2″
- incluye rebosadero lateral oculto C-overflow®
- InFino®: sistema de desagüe integrado para un mantenimiento fácil
El paquete incluye:
- juego de desagüe con conexión para lavajillas
- 3 1⁄2″ desagüe InFino® con control excéntrico (control desde distancia)
- accesorios de fijación



















Valoraciones
No hay valoraciones aún.