Fregadero de cocina Legra 6 S Compact
- color antracita
- material SILGRANIT®
- adecuado para montaje superior
- diseño universal
- con rebosadero
- fregadero de un seno con cubeta y escurridor
- sin control de desagüe excéntrico
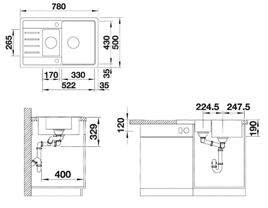
- anchura mínima del armario 600 mm
- dimensión total 780 x 500 mm
- dimensión del fregadero 330 x 430 mm
- dimensión de la cubeta 170 x 265 mm
- profundidad de los recipientes 190/120 mm
- diámetro del desagüe 3 1/2″
- posibilidad de instalar un triturador de residuos
- incluye juego de desagüe con tubo ahorrador de espacio y 2x válvula de filtro de 3 1/2″

















Valoraciones
No hay valoraciones aún.